GLÜCK AUF.

DIE ECKDATEN.

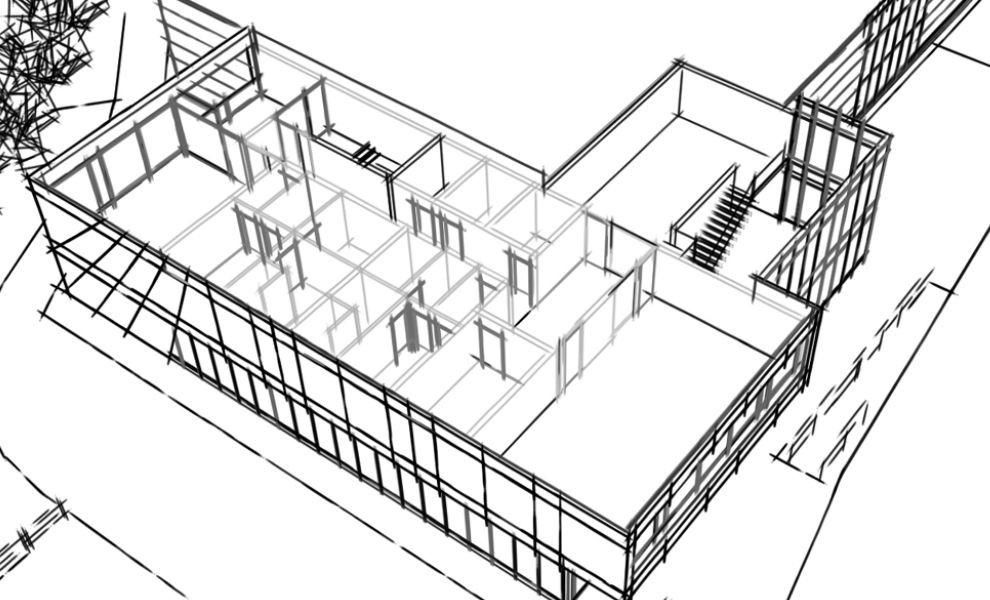
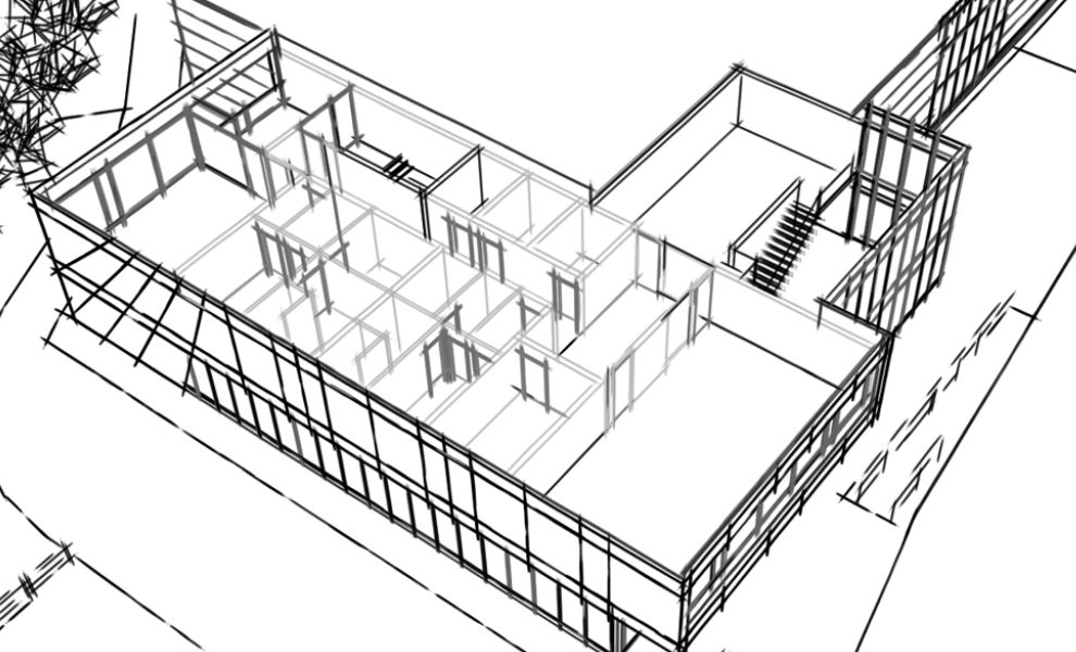
  • Standort: Hochsauerlandkreis
  • Nutzfläche: 3.950 qm
  • Leistungen: Machbarkeitsstudie, Wettbewerb (Platz 1)

Das Projekt im Detail.

Die Aufgabe des Wettbewerbs in einem Gewerbe­gebiet in einer Klein­stadt im Sauer­land be­stand grund­sätzlich in der Zusammen­legung von zwei vor­hand­enen Betriebs­stand­orten sowie der Inte­gration und Auf­wertung des Be­stand­ge­bäudes. Zur Aus­ar­beitung ge­hörten zwei Vari­anten: Einer­seits die Ein­bezieh­ung des vor­handenen Büro- und Sozial­bereichs in Ver­bin­dung mit einer Auf­stock­ung, ander­seits den Rück­bau und Neu­bau des Büro­traktes. Hier zu sehen ist die zweite Vari­ante. Die vor­handene Produk­tions- und Lager­fläche wurde um ca. 1.600qm er­weitert. Zur Straßen­seite hin wurde das Bau­feld maximal­aus­ge­nutzt und die Fassade des Neu­baus an der kom­pletten Front in einer klaren Linie durch­ge­zogen.

Der Bürotrakt mit einer kleinen inte­grierten Aus­stellung und den Sozial­räumen für den Betrieb wurde an der Süd­west­seite des Ge­ländes neu angeordnet. Hier ist die Haupt­zu­fahrt ins Ge­werbe­gebiet und somit ist die Aus­stellung und der Empfang direkt für den Kunden er­sicht­lich. Der in dieser Vari­ante zu­rück­ge­baute bis­herige Büro­trakt be­fand sich auf der der Zu­fahrt ab­ge­wandten Seite. Kons­truk­tiv ist so­wohl der Hallen­neu­bau sowie der Büro­trakt in Holz­bau­weise vor­ge­sehen; Fenster und Pfosten-Riegel­kons­truk­tion in einer Holz-Alu­mini­um-Kom­bi­nation. Für die Fassade des Büro­traktes haben wir eine Alu­mini­um-Vor­hang­kons­truktion ein­ge­plant, die einen zwei­farbigen leicht reflek­tieren­den Ober­flächen­effekt auf­weist, um dem Ge­bäude je nach Blick­winkel eine sich ver­ändernde Ober­fläche zu ver­leihen. Mit unserem Bei­trag konnten wir in den Punkten Lo­gis­tik und Ge­stal­tung über­zeugen und er­hielten den 1. Platz im Wett­be­werb.

Ihr direkter Kontakt.

Zusammen

bauen.

Sie haben Fragen, suchen nach Antworten, Ideen oder haben schon genaue Pläne? Wir sind für Sie da. Telefonisch, per Mail, persönlich.

International präsent mit neuer Produktion.

  • Industrial Park Miroslava II, Iasi, Rumänien
  • 7.500 qm

Viergeschossiges Hauptgebäude mit zusätzlicher Betriebskantine.

  • Industriepark Krefeld
  • 6.835 qm

Kapazitäten für Maschinenpark.

  • Kreuztal, Siegener Straße
  • 550 qm

Chorsaal in der Nähe der Kirche.

  • München
  • 510 qm

Konzept und partielle Erweiterung.

  • Kirchhundem, Welschen Ennest
  • 12.000 qm

Drei kranbetriebene Hallenschiffe.

  • Krefeld, Wendebecken
  • 9.000 qm

Sanierung und brandschutztechnische Aufwertung im laufenden Betrieb.

  • Siegen, Papierfabrik
  • 10.000 qm

Logistikkonzept, Entwurf, Designkonzept

  • Krefeld, Heidbergsweg
  • 3.000 bis 6.000 qm

Dreistufiger Ausbau des Firmengeländes.

  • Krefeld, Heidbergsweg
  • 32.000 qm

Platz für 150 Mitarbeitende und mehr.

  • Krefeld, Heidbergsweg
  • 4.100 qm

Neubau und Erhalt verbunden.

  • Kreuztal-Ferndorf
  • 683 qm

Bestandsgebäude wird moderne Praxisklinik.

  • Kreuztal-Eichen, Eichener Straße
  • 169 qm (Kliniknutzung)

Multifunktionsgebäude als Erweiterungsneubau.

  • Schmallenberg, Bad Fredeburg
  • 1.027 qm (Neubau), 3.330 qm (Bestand)

Umfangreiche Sanierung im laufenden Betrieb.

  • Netphen, Brauersdorfer Straße
  • 5.786 qm

Zusammenspiel von Massivbaukörper und verglastem Büroriegel.

  • Schmallenberg, Auf dem Loh
  • 535 qm

Neues Bürogebäude in mehreren Bauabschnitten.

  • Kirchhundem, Welschen Ennest
  • 1.448 qm Nutzfläche

Komplexer Stahlbau für neuen Ofenturm.

  • Werdohl
  • 962 qm Nutzfläche

Halle in Stahlkonstruktionsbauweise.

  • Neunkirchen, Pfannenberg
  • 12.112 qm Nutzfläche

Umfunktionierung zur Montagehalle mit angegliedertem Wareneingang.

  • Kirchhundem, Welschen Ennest
  • 12.476 qm Nutzfläche

In sieben Monaten zur lichtdurchfluteten Kantine.

  • Siegen-Weidenau
  • 199 qm Nutzfläche

Dreigeschossiges Gebäude mit unterschiedlichem Nutzen.

  • Sehmatal, Erzgebirge
  • 1.229 qm Nutzfläche

Offene Gesamtstruktur mit lichtdurchflutetem Innenraum.

  • Kreuztal-Buschhütten
  • 1.850 qm Nutzfläche

Zwei Etagen neu genutzt.

  • Kreuztal-Buschhütten
  • 650 qm Nutzfläche

Alt und neu modern verbunden.

  • Hochsauerlandkreis
  • 3.950 qm Nutzfläche

Alles integriert in Bauabschnitt M10.

  • Kirchhundem, Welschen Ennest
  • 850 qm Nutzfläche

Vom Möbel­haus zum Stud­ieren­den-Service-Center.

  • Siegen
  • 4.010 qm Nutzfläche

Grünes Leben im modernen Quartier.

  • Kreuztal-Buschhütten
  • 12.000 qm

Hybride Bauweise, hybrid nutzbares Gebäude.

  • Freudenberg
  • 1.400 qm

Ein altes Gasthaus wird zur modernen Wohnanlage.

  • Hilchenbach-Helberhausen
  • 2.500 qm

Drei Wohneinheiten im Grünen.

  • Hilchenbach
  • 500 qm Nutzfläche

Aufwertung zu funktionalem Quartier.

  • Siegen
  • 12.550 qm Nutzfläche

Von der Vision zur Eventlocation.

  • Hilchenbach-Lützel
  • 800 qm Nutzfläche

Zwei Mehrfamilienhäuser, 14 Wohneinheiten, viel Lebensqualität.

  • Kreuztal
  • 2.200 qm Nutzfläche

Offener Neubau mit individuellem Touch.

  • Freudenberg
  • 1.000 qm Nutzfläche

Erhalt und Neubau eines Betriebsstandorts.

  • Kreuztal-Ferndorf
  • 2.200 qm Nutzfläche

Umfangreiche Sanierungsarbeiten des Hallenbads.

  • Siegen-Eiserfeld
  • 2.120 qm Nutzfläche